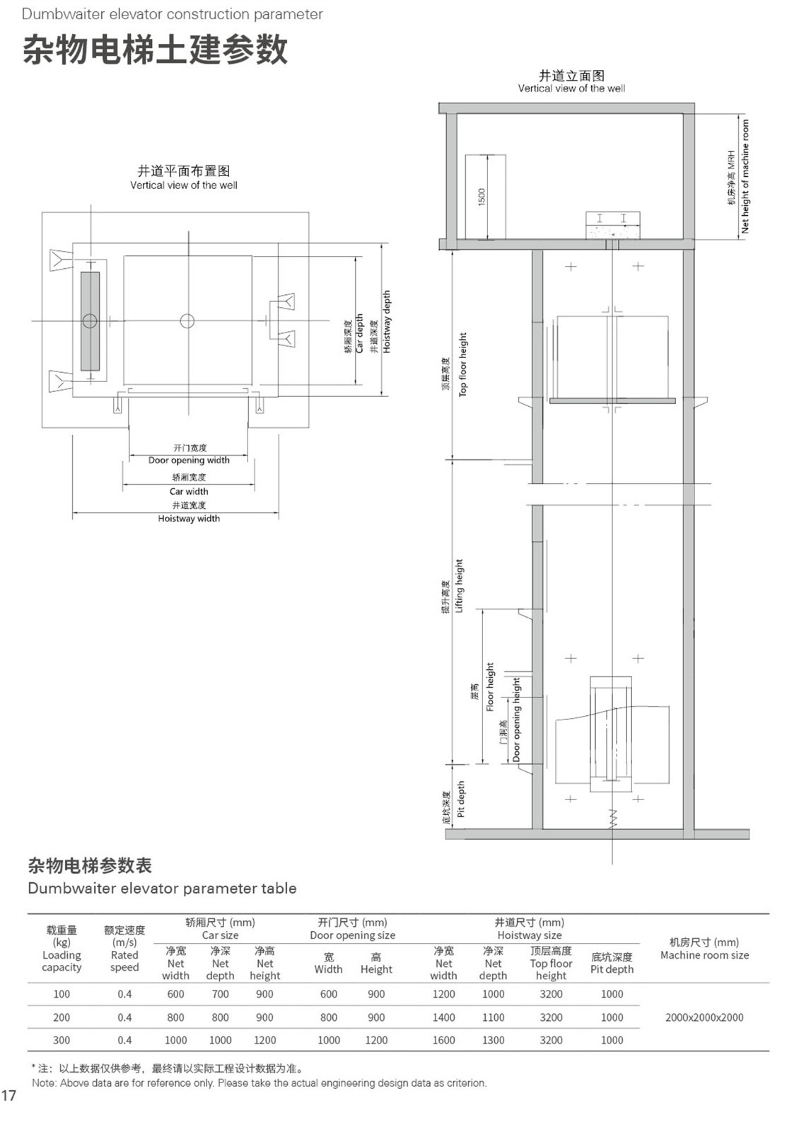
幸福宝官网入口APP杂物电梯具有自身特殊的架构式结构,因此有、无机房土建井道均可灵活自由采用,且易于安装、及外部装修,采用工业 PLC 系统控制,是餐饮业、酒店、图书馆等场所理想的轻便载物的垂直运输工具。
版权所有©幸福宝官网入口APP电梯有限公司 备案号:赣ICP备13554332号-1 赣公网安备 36012202000318号
地址:江西省南昌市新建区望城新区兴业一路366号 网址:www.yongjiejz.com 服务热线:400-098-1966 技术支持:
* 信息保护中,请放心填写