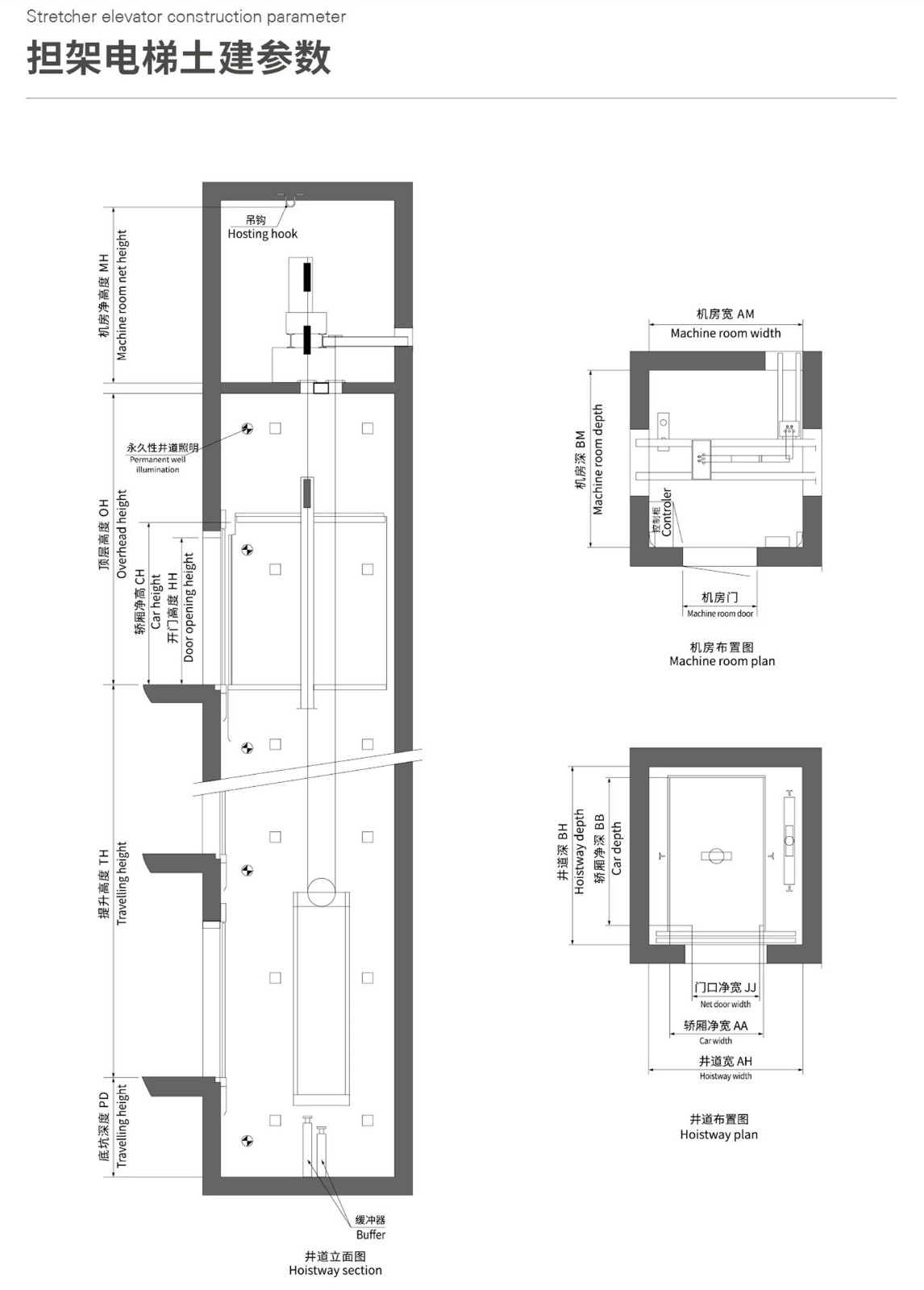
幸福宝官网入口APP担架电梯采用深轿厢结构,大载重设计,可满足 120 急救中心的急救担架车、折叠式急救担架车和软担架的进出要求,打造舒适的绿色通道。
版权所有©幸福宝官网入口APP电梯有限公司 备案号:赣ICP备13554332号-1 赣公网安备 36012202000318号
地址:江西省南昌市新建区望城新区兴业一路366号 网址:www.yongjiejz.com 服务热线:400-098-1966 技术支持:
* 信息保护中,请放心填写