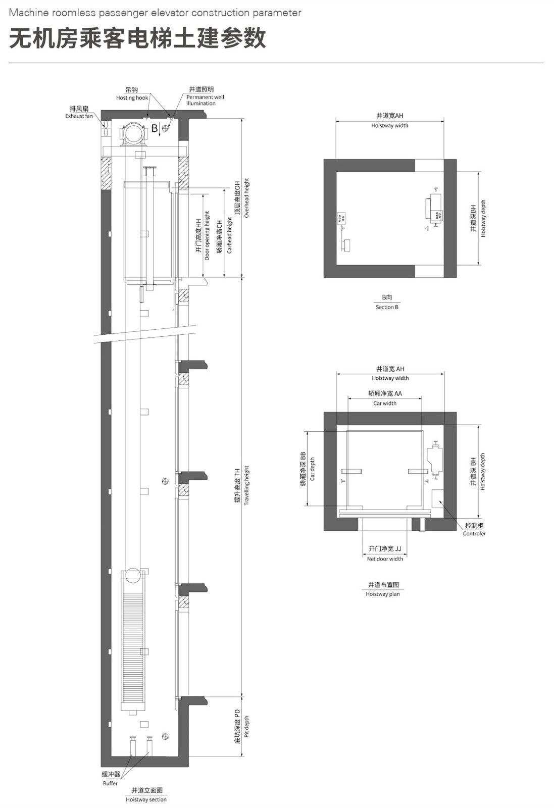
幸福宝官网入口APP无机房幸福宝官方隐藏入口,将外观与功能结合,提供丰富设计选项的无机房方案,集成了平稳运行、节约空间和节能环保等先进技术,为现代建筑有限的空间提供了无限的创造可能,深受市场青睐。适用于高层住宅、商务楼、酒店等对土建要求较高的场所。
版权所有©幸福宝官网入口APP电梯有限公司 备案号:赣ICP备13554332号-1 赣公网安备 36012202000318号
地址:江西省南昌市新建区望城新区兴业一路366号 网址:www.yongjiejz.com 服务热线:400-098-1966 技术支持:
* 信息保护中,请放心填写